ВКМ.КО DN10-40
Клапаны обратные ВКМ.КО
DN = 10 ▪ 15 ▪ 20 ▪ 25 ▪ 32 ▪ 40 мм
Назначение и область применения
Клапаны обратные марки ВКМ.КО предназначены для установки в качестве устройств для автоматического предотвращения обратного потока рабочей среды в трубопроводах в технологических процессах на объектах металлургической, химической, нефтехимической, газовой, горнодобывающей, пищевой, целлюлозно-бумажной и других отраслях промышленности, предприятиях теплоэнергетики и водоснабжения. Рабочие среды: пар, природный газ, пропан, бутан, нефтепродукты, битум, керосин, воздух, вода, техническая вода, аммиак, технологические газы (водород, кислород) и другие жидкие и газообразные среды не агрессивные к основным материалам крана.
Преимущества и особенности конструкции
- Повышенная пропускная способность за счет специальной формы корпуса;
- Небольшой вес;
- Простота обслуживания и замены уплотнения;
- Длительный срок безаварийной работы в течение всего срока эксплуатации без особых затрат на техническое обслуживание и ремонт;
- Высокая герметичность клапана относительно внешней среды и герметичность запорного органа при перепаде давления от 0 до PN;
- Малые габаритно-строительные размеры изделий;
- Широкий выбор резиновых смесей, эластичных материалов, а так же исполнения уплотнения затвора «металл-по-металлу», позволяет использовать клапаны обратные ВКМ.КО в трубопроводах с температурами рабочей среды от -196°С до + 450°С.
Технические характеристики
Условное давление PN, кг/см² |
6, 10, 16, 25, 40, 63, 80, 100, 160, 200, 320 |
Температура рабочей среды |
от -196°С до +450°С |
Уплотнение затвора |
Эластичное: резина МБС, резина силиконовая, Фторопласт Ф-4, Ф4К20; |
Направление рабочей среды: |
Одностороннее, согласно стрелки на корпусе клапана |
Климатическое исполнение по ГОСТ15150-69 |
У1 - умеренное (температура окружающей среды |
Присоединения к трубопроводу |
- под приварку |
Полный средний срок службы |
10 лет |
Полный средний ресурс |
не менее 5000 циклов |
Наработка на отказ |
не менее 1000 циклов |
Рабочая среда |
пар, природный газ, пропан, бутан, нефтепродукты, битум, керосин, воздух, вода, техническая вода, аммиак, технологические газы (водород, кислород) и другие жидкие и газообразные среды |
Исполнение по материалам
Основные детали |
Тип исполнения |
|
С |
Н |
|
1. Корпус |
Сталь 20 (Сталь 09Г2С) |
Сталь 12Х18Н10Т |
2. Захлопка |
Сталь 20 (Сталь 09Г2С) |
Сталь 12Х18Н10Т |
3. Уплотнение |
Резина МБС, резина силиконовая, Фторопласт Ф-4, Ф4К20 |
|
4. Ось |
Сталь 20Х13 (30Х13) |
Сталь 12Х18Н10Т |
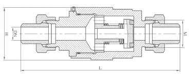
Основные размеры и чертеж
![]() |
| Клапан обратный DN10-40 на давление до 320 кг/см² |
Габаритные размеры
Обозначение |
DN |
L, мм |
H, мм |
M, мм |
Масса, кг |
ВКМ.КО-010-080-С |
10 |
110 |
36 |
М20х1,5 |
2,0 |
ВКМ.КО-015-080-С |
15 |
125 |
48 |
М24х1,5 |
2,5 |
ВКМ.КО-020-080-С |
20 |
180 |
60 |
М33х1,5 |
3,5 |
ВКМ.КО-025-080-С |
25 |
265 |
80 |
М60х2 |
4,0 |
ВКМ.КО-032-080-С |
32 |
320 |
90 |
М76х2 |
6,0 |
ВКМ.КО-040-080-С |
40 |
395 |
110 |
М90х3 |
7,0 |
Пример условного обозначения при заказе
Клапан обратный марки ВКМ.КО с условным диаметром DN25 и номинальным давлением PN250кг/см2, материал клапана углеродистая сталь, климатического исполнения У1, рабочая среда — природный газ, присоединение штуцерно-ниппельное с ответными деталями (с КМЧ).
Клапан обратный ВКМ.КО-025-250-С (природный газ, У1, штуц.-нипп., с КМЧ)
ГОСТ 27477-87
-
- Для жидких и газообразных сред
